住まい・住まい方実験

間取り変更実験例

間取りの変更により、建築システムの有効性・施工性等を検証しました。
また、改修毎にその時期の住まいの課題を検討し、住まいの提案を行い、居住後の住まい方を調査しています

402住戸「すこやかな家」→「変身する家」(2025年)

TRANS×HOME 402住戸 ー 暮らす。試す。広がる。ー “変身する家”

賃貸マンション「URBANEX(アーバネックス)」、分譲マンション「SCENES(シーンズ)」を展開する大阪ガス都市開発(株)が、商品企画に盛り込める技術を検証するために、NEXT21の一室で居住実験を実施。
家族構成が変化し、住まい方・働き方が多様化する時代に応えるために、「暮らす。試す。広がる」をコンセプトに、様々な生活スタイルでの住まい方を検証します。具体的には402住戸を3つのエリアに分け、専有部の「コンパクト化」 「可変性」、準専有部の使われ方を検証します。
※大阪ガス都市開発 居住実験特設サイト
「暮らす。試す。広がる。TRANS×HOME[変身する家]」

暮らす。試す。広がる。TRANS×HOME[変身する家]詳細はこちら

実験の概要について

108.62m²を3つのゾーンに区画割りし、2世帯が居住される想定

Uゾーンは、「URBANEX(アーバネックス)」をモチーフとし、単身世帯をメインターゲット

Sゾーンは、「SCENES(シーンズ)」をモチーフとし、二人世帯をメインターゲット

Cゾーンは、2世帯が事前予約のうえ、利用可能な共用エリアとなる想定

実験の概要

Uゾーン(27m²)

Uゾーン(27m²)

賃貸マンションを想定したエリア。
多目的に利用可能なベッド、シャワーブース等の設置等により、狭い面積でも広く感じられる住戸を備えた「コンパクトで快適に過ごせる部屋」

Sゾーン(55m²)

Sゾーン(55m²)

分譲マンションを想定したエリア。
可動家具(キャビネット、キッチン作業台等)と可動間仕切りにより、好きな時に好きなところで好きな広さで過ごせる「自分でカスタマイズできる住まい」

Cゾーン(18m²)

Cゾーン(18m²)

ワークスペース・趣味部屋・来客用など、目的に応じて可変できる多目的室。
「準専有部スペース」であり、UゾーンやSゾーンの拡張部屋として利用可能。

リフォーム前

すこやかな家
(108.36m²)

リフォーム前
リフォーム前

リフォーム後

変身する家
(U:26.54m²,
S:54.64m²,C:17.92m²)

リフォーム後
リフォーム後

2025年12月 居住実験開始。一住戸を「単身世帯」「2人世帯」と「共有部」の3エリアに分割して検証を行っています。

304住戸「拡大家族の家」→「住み継ぎの家」(2011年)

リフォーム前

拡大家族の家
(83.58m²)

リフォーム前
リフォーム前

リフォーム後

住み継ぎの家
(83.50m²)

リフォーム後
リフォーム後

住戸の東西に土間の中間領域を設け、最外壁ラインのガラス戸はアルゴンガス入りLow-Eペアガラスとすることで
断熱性能の高い住戸となりました。

305住戸「アクティブシルバーの家」→「余白に棲む家」(2013年)

リフォーム前

アクティブシルバーの家
(95.40m²)

リフォーム前
リフォーム前

リフォーム後

余白に棲む家
(87.26m²)

リフォーム後
リフォーム後

回遊性のある土間が、屋外空間を屋内空間に引き込む住まいとなりました。

403住戸「ハーモニーの家」→「しなやかな家」(2013年)

リフォーム前

ハーモニーの家
(122.46m²)

リフォーム前
リフォーム前

リフォーム後

しなやかな家
(117.81m²)

リフォーム後
リフォーム後

スケルトンの床下空間を利用し、南側の露台は足をブラブラと遊ばせながら
座ることができる中間領域となりました。

404住戸・405住戸「3世代ファミリーの家 」→「ウッディハウス」
→「4G HOUSE」/「次世代〈家族〉の家」(2000年/2014年)

リフォーム前

3世代ファミリーの家
(190.15m²)

リフォーム前

リフォーム後

①ウッディハウス
(81.51m²)
②次世代<家族>の家
(91.98m²)

リフォーム後

再リフォーム後

4G HOUSE
(82.63m²)

再リフォーム後
再リフォーム後

大きな一つの住戸を屋外空間を挟む二つの住戸に分割しました。
同時に南側の住戸はまったく新しい間取りに変更し、後に北側の住戸も間取り変更を行いました。

405住戸「次世代〈家族〉の家」可変インフィル変更実験(2003年)

リフォーム前

次世代〈家族〉の家
(91.98m²)

リフォーム前
リフォーム前

リフォーム後

可変インフィル変更実験
(91.98m²)

リフォーム後
リフォーム後
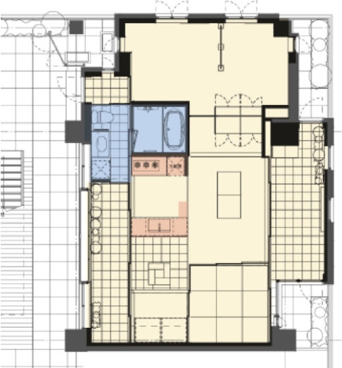
405住戸「次世代〈家族〉の家」可変インフィル変更実験

中央にある浴室・洗面・トイレを除いて、可動間仕切り・可動システム家具で内装が構成されています。
間取り変更が省資源・短期間で簡易に行える設えを利用し、キッチン・リビング・北側個室、南側寝室の間取り変更を行いました。

501住戸「フィットネスルームのある家」
→「プラスワンの家」(2014年)

リフォーム前

フィットネス
ルームのある家
(91.98m²)

リフォーム前
リフォーム前

リフォーム後

プラスワンの家
(88.26m²)

リフォーム後
リフォーム後

立体街路からベランダ側まで土間が引き込まれ、母屋と離れをつなぐ中間領域となります。